Villa i Stresa ved Lago Maggiore

28838 Stresa, via Principe di Piemonte, Piemonte, Italia

7 300 000 NOK
  1. EUR 625.000
  1. Historisk villa
  2. Byggeår 1930
  3. Siste modernisering 2016
  4. 307 m² Boareal
  5. 530 m² Tomteareal
  6. 8 Rom
  7. 3 Soverom
  8. 4 Baderom
  9. 4 Etasjer

Villaen i Stresa ble bygget i 1930 og utvidet i 1997 med en panoramaetasje. Den har cirka 307 m² boligareal fordelt på fire etasjer, med rom som får mye lys gjennom dagen takket være bygningens orientering mot sørøst og vest. 

Planløsning: 

  • Kjeller: Taverna, garasje for tre biler, teknisk rom og lagringsplass. 
  • Første etasje (inngangsetasje): Inngangshall, ganger, stue, soverom med dobbeltseng, to bad. 
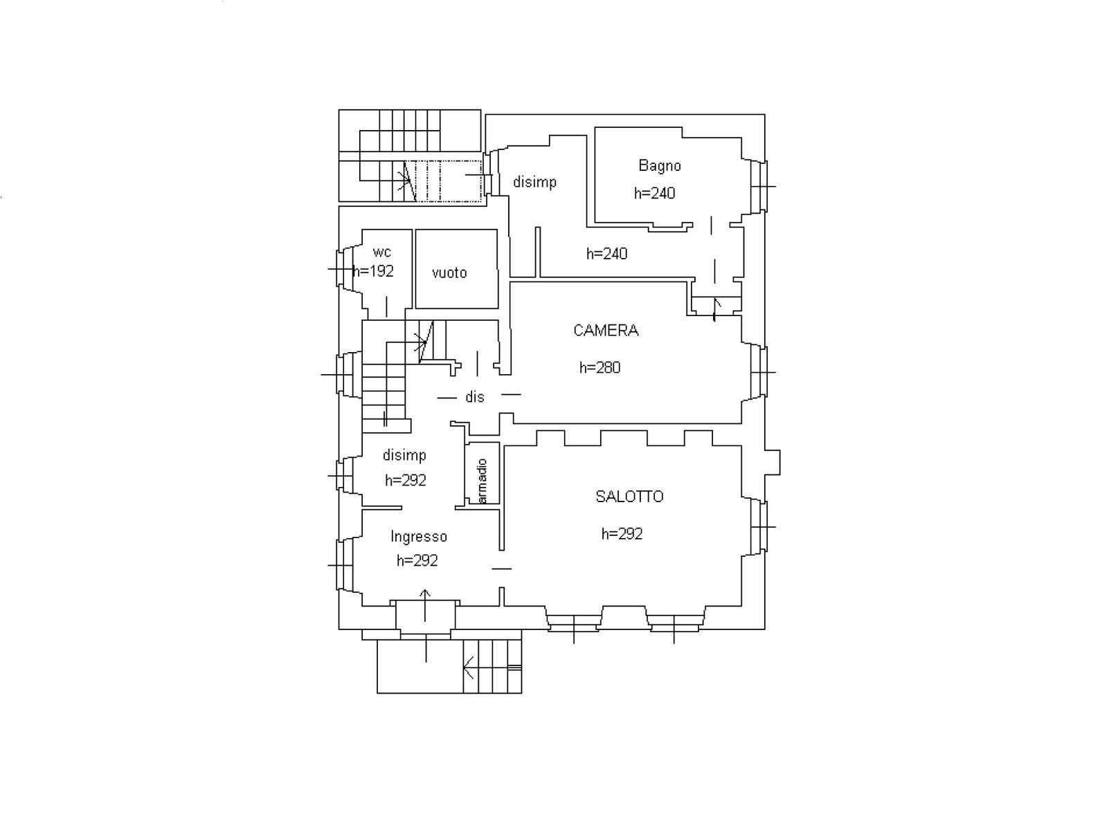
  • Andre etasje: Stue, to kjøkken med utgang til balkong, gang med utgang til lang balkong, soverom med dobbeltseng, bad. 
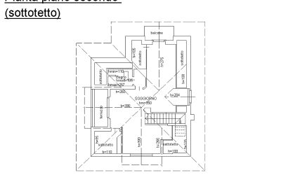
  • Tredje etasje (panoramaetasje): Stort åpent rom brukt som stue/arbeidsområde, balkong, panoramaterrasse og bad.

Villaen har bevart originale detaljer, inkludert tregulv, termoruter i jugendstil og spesialbygde innbyggede skap. Oppvarming skjer med gass. Boligen selges delvis møblert, og med separate innganger kan den lett deles i tre boenheter.

Uteareal:
Privat hage på 530 m² med direkte tilgang fra huset.

Beliggenhet:
Nær motorvei A26 og Stresa jernbanestasjon, med kort reiseavstand til Borromeiske øyer og botaniske hager. Milano-Malpensa internasjonale lufthavn ligger cirka 45 minutter unna.

Karakter og egenskaper

Arkitektur
Jugendstil
Architekturdetaljer
Peis Farget glass Balkong
Byggemetode og fasade
Frittstående bygning Kjeller Pusset fasade
Tak
Skråtak
Vinduer
Tre vindusrammer
Bygningsmessig tilstand
Delvis modernisert
Oppvarmingstype
Etasjevarme
Type avfyring
Gass Tre
Gulv
Historiske gulvfliser Parkett Granitt
Bad og sanitær
Dusj Badekar Bad med vindu
Beliggenhet
Sentral beliggenhet Bykjernen
Utsikt
Utsikt over hage
Tomteegenskaper
Hage
Tjenester
Fullt utviklet
Parkeringsplasser
Garasje
Omgivelse og infrastruktur
Butikker Lege/Sykehus/Apotek Myndighet Jernbanestasjon Motorvei Kirke Gastronomi Fritidsfasiliteter
Nåværende bruk
Boligeiendom
Fremtidig utnyttelse
Privatbolig/Familiebolig
Juridisk informasjon

Byrå

Città Ideale

Corso Mameli 203

28921 Verbania Intra

Italia
Kontakt
Fasttelefon: +39 0323 407435
Abonner på Città Ideale

Få nye eiendomsannonser via e-post. Søkeforespørselen kan deaktiveres når som helst.

Sabine Cova MinottiVi snakker Deutsch  Vi snakker English  Vi snakker Italiano 
Città Ideale
Abonner
  • REALPORTICO-ID
    2606399
  • Siste endring
    I dag
  • Visninger
    -
  • Nådde personer
    -

Città Ideale

Oppdag flere historiske eiendommer

Eksklusiv villa fra Belle Epoque ved Lago Maggiore
105 080 000 NOK
Villa med utsikt over innsjøen i Cannero Riviera, Lago Maggiore
18 560 000 NOK
Villa med sjøutsikt i Stresa
22 770 000 NOK
Oppdag mer