Skicka förfrågan

Villa i tidig Libertystil med utsikt över Lago Maggiore

Luino, Lombardiet , Italien

32 410 000 SEK
  1. EUR 2.950.000
  1. Historisk villa
  2. Byggnadsår 1896
  3. 800 m² Användbar yta
  4. 5 000 m² Tomtstorlek
  5. 5 Sovrum
  6. 5 Badrum

Denna villa från 1896 kombinerar sen historicism med influenser från Libertystilen som präglade norra Italien kring sekelskiftet. Diskret inredning och stora fönster släpper in rikligt med ljus och antyder en övergång mot modernitet. Högsta poängen är den fantastiska utsikten över Lago Maggiore med Alpernas silhuett i fjärran. 

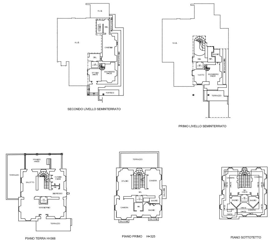
Tomten är på hela 5 000 m² och erbjuder totalt 800 m² boarea inklusive ett inrett loft och en separat tillbyggnad med flexibla bostads- och arbetsmöjligheter samt flera fritidsytor. 

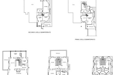
Villan är fördelad på fyra våningar som nås både med hiss och via en imponerande trappa under ett stort takfönster. 

Entréplanet rymmer ett rymligt vardagsrum, matsal och kök. Två generösa terrasser ger en perfekt plats att njuta av den norditalienska sjö- och alpspanoraman. 

Sovrummen finns på första våningen, där ett dubbelrum med eget badrum utrustat med bubbelbadkar och walk-in-closet är huvudattraktionen. Ett extra rum med eget badrum och terrass kompletterar våningen.

Loftet, som är 180 m² stort, innehåller två sviter med vardagsrum, badrum och en oslagbar utsikt över sjön.

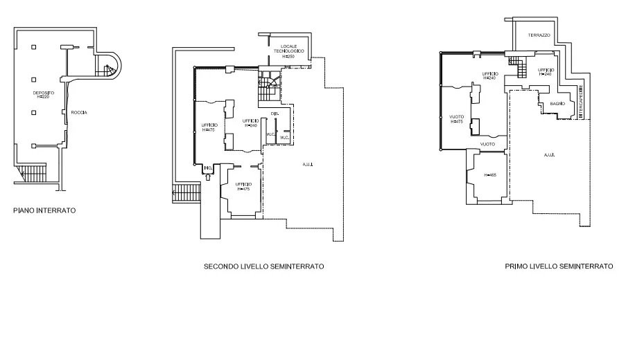
I källarplanet finns gästbadrum samt cirka 100 m² källarutrymme med högt i tak och stora rum, som passar utmärkt som kontor. Den här våningen omges av en stor terrass, och den dubbla takhöjden skapar en mezzanin indelad i tre rum.

En separat tillbyggnad med två våningar och egen terrass med sjöutsikt passar bra för gäster eller personal.

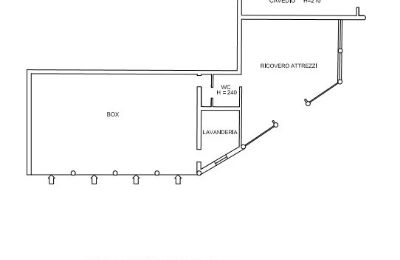
Poolen ligger i parkens övre del och är utrustad med paviljong, omklädningsrum och dusch. Det finns även ett cirka 60 m² stort gym med stora fönster, och ett garage på 160 m² med plats för fyra bilar.

Intresserad från Sverige?
Vi bjuder in dig till en personlig visning och hjälper dig gärna med hela köpprocessen i norra Italien. Från juridisk rådgivning till kontakter med myndigheter – vi finns vid din sida för att göra ditt fastighetsköp så smidigt som möjligt. Hör av dig för mer information eller för att boka visning!

Juridisk information

Fastighetsbyrå

Stresa Luxury Real Estate

Corso Italia 52

28838 Stresa

Italien
Direktör
Francesco Papurello
Kontakt
Fast telefoni: +39 0323 32737
Prenumerera på Stresa Luxury Real Estate

Få nya försäljningserbjudanden från denna fastighetsmäklare via e-post. E-postaviseringen kan avaktiveras när som helst.

Francesco PapurelloVi talar English  Vi talar Francais  Vi talar Italiano 
Stresa Luxury Real Estate
Följa
  • REALPORTICO-ID
    2504144
  • Senast ändrad
    2 månader sedan
  • Visningar
    3.83k
  • Personer nådda
    3.34k

Top 10 länder för denna historiska egendom

Visningar senaste 30 dagarna

Stresa Luxury Real Estate

Se fler historiska fastigheter

Villa med park och privat strand vid Lago Maggiore
16 480 000 SEK
Luxusvilla i Stresa vid Lago Maggiore med panoramatorn och stor trädgård
27 470 000 SEK
Historisk villa med trädgård i Lesa
9 890 000 SEK
Upptäck mer